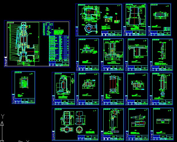
100 A48Y-16C安全阀套图
- 文件大小: 265.62 KB
- 下载次数:
- 文件评级:

- 更新时间: 2014-10-14
- 发布人: 184819733
该文件为 dwg 格式(源文件可编辑),下载需要 20 积分
100 A48Y-16C安全阀套图
A41H-40C-DN65,A41H-40C-DN80,A41H-40C-DN100,弹簧微启封闭式安全阀,温纳弹簧微启封闭式安全阀,安全阀生产厂家产品型号: 产品名称:公称压力:1.6-32.0Mpa壳体材质:铸钢、不锈钢 产品用途:A41H型弹簧微启封闭式安全阀适用于工作温度≤300℃的石油气、空气、水等介质的设备或管路上。A41Y-P/R型适用于工作温度≤200℃有腐蚀性介质的设备或管路上,作为超压保护装置。连接法兰标准按JB/T……94/系列1。产品【弹簧微启封闭式安全阀】
产品型号:A41H/Y-16C、P
产品名称:弹簧微启封闭式安全阀
公称压力:1.6-32.0Mpa
壳体材质:铸钢、不锈钢
产品用途:A41H型弹簧微启封闭式安全阀适用于工作温度≤300℃的石油气、空气、水等介质的设备或管路上。...
×
