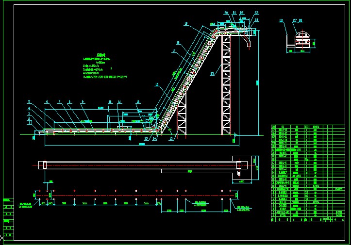
大倾角皮带运输机
- 文件大小: 109.63 KB
- 下载次数:
- 文件评级:

- 更新时间: 2014-10-14
- 发布人: 1419745246
该文件为 dwg 格式(源文件可编辑),下载需要 20 积分
大倾角皮带运输机
主要技术参数
1、挡边输送带:B=800mm,h=160mm,2、带速:υ=1.25m/s
3、输送物料:精煤,γ=0.9t/m
4、输送量:Q=90t/h
5、电动滚筒:WYBN-220-125-8063S(P=22kW)t=200mm...
×
