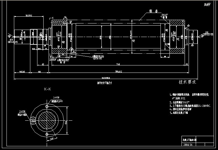
压痕上下辊加工图
- 文件大小: 95.16 KB
- 下载次数:
- 文件评级:

- 更新时间: 2014-10-22
- 发布人: 482923078
该文件为 dwg 格式(源文件可编辑),下载需要 20 积分
压痕上下辊加工图
技术要求
1。钢套与辊装配后同磨, 各段外圆对两顶尖孔 允差0.012.
2。未注明倒角1X45°
3。上下辊体为45钢,热处理:调质24-28HRC.
4。图中左边垫肩可以拆卸
5。此图为压痕上下辊...
×
