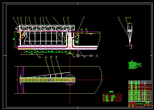
周边传动初沉池刮泥机
- 文件大小: 1.26 MB
- 下载次数:
- 文件评级:

- 更新时间: 2014-10-22
- 发布人: 482923078
该文件为 dwg 格式(源文件可编辑),下载需要 20 积分
周边传动初沉池刮泥机
技术要求
1.本图尺寸除标高以米计,其余均以毫米计。
2.本机安装参照产品使用说明书及相关部件图纸进行。
3.设备碳钢零部件表面经抛丸除锈后涂环氧玻璃鳞片底漆4道,漆膜厚度不小于0.15mm,再涂842环氧云铁4道,厚度不小于0.28mm.然后涂氯磺化橡胶面漆4道,漆膜厚度不小于0.28mm.保证表面无滴淌、龟裂等缺陷。
4.设备以部件形式发货,现场组装焊接。刮集装置中的吊架及斜拉角钢均现场焊接,安装时保证吸泥嘴底部距池底距离不小于80mm。
5.浮渣刮板安装时应保证刮板宽度方向中心线与水位标高齐平。
6.漏斗及堰板、挡板安装参照部件图尺寸进行。
...
×
