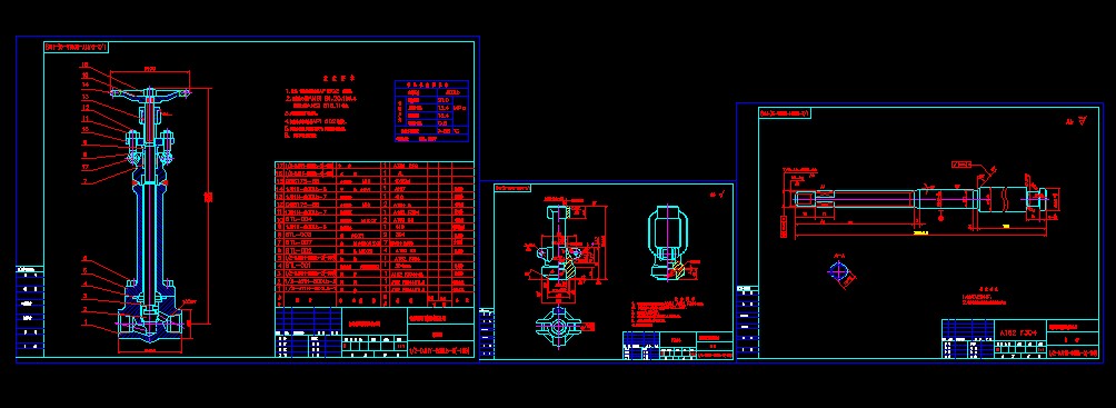
1-2”DJ11Y-800Lb 内螺纹连接低温截止阀
- 文件大小: 1.27 MB
- 下载次数:
- 文件评级:

- 更新时间: 2016-03-25
- 发布人: 2514367167
该文件为 dwg 格式(源文件可编辑),下载需要 20 积分
1-2”DJ11Y-800Lb 内螺纹连接低温截止阀.dwg
【截止阀】也叫截门,是使用最广泛的一种阀门!它之所以广受欢迎,是由于①开闭过程中密封面之间摩擦力小。②比较耐用。③开启高度不大。④制造容易。⑤维修方便。⑥不仅适用于中低压,也适用于高压。【内螺纹/承插焊Y型截止阀】的闭合原理是,依靠阀杠压力,使阀瓣密封面与阀座密封面紧密贴合,阻止介质流通。截止阀只许介质单向流动,安装时有方向性。截止阀的结构 长度大于闸阀,同时流体阻力大,长期运行时,密封可靠性不强。...
×
