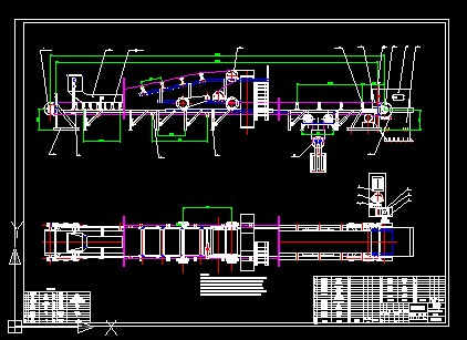
多点卸料带式输送机总装图B1200
- 文件大小: 401.06 KB
- 下载次数:
- 文件评级:

- 更新时间: 2016-06-21
- 发布人: 2873218700
该文件为 dwg 格式(源文件可编辑),下载需要 20 积分
带式输送机(beltconveyer)又称胶带输送机,俗称输送设备。广泛应用于家电、电子、电器、机械、烟草、注塑、邮电、印刷、食品等各行各业,物件的组装、检测、调试、包装及运输等。输送设备包括:皮带输送机也叫带式输送机或胶带输送机等,是组成有节奏的流水作业线所不可缺少的经济型物流输送设备。皮带机按其输送能力可分为重型皮带机如矿用皮带输送机,轻型皮带机如用在电子塑料,食品轻工,化工医药等行业。皮带输送机具有输送能力强,输送距离远,结构简单易于维护,能方便地实行程序化控制和自动化操作。运用输送带的连续或间歇运动来输送100KG以下的物品或粉状、颗状物品,其运行高速、平稳,噪音低,并可以上下坡传送。...
×
