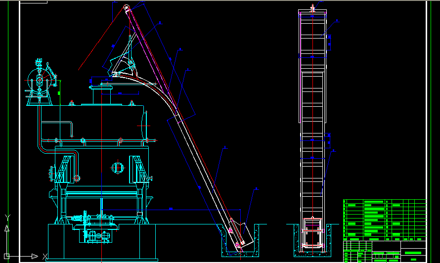
煤气发生炉上料机构
- 文件大小: 119.37 KB
- 下载次数:
- 文件评级:

- 更新时间: 2014-08-25
- 发布人: 1722679795
该文件为 dwg 格式(源文件可编辑),下载需要 20 积分
煤气发生炉是将煤炭转化为可燃性气体——煤气(主要成分为CO、H2、CH4等)的生产设备。工作原理为:将符合气化工艺指标的煤炭筛选后,由加煤机加入到煤气炉内,从炉底鼓入自产蒸汽与空气混合气体做为气化剂。煤炭在炉内经物理、化学反应,生成可燃性气体,上段煤气经过旋风除油器、电捕器过滤焦油.下段煤气经过旋风除尘器清除灰尘,经过混合后输送到用户使用。广泛适用于轧钢炉、退火炉、锻造炉、钢管炉、玻璃炉、熔铝炉、铜材炉、建陶炉等各种热工炉所需温度范围内的各种炉形。
发生炉煤气是通过水蒸气和空气混合形成气化剂后流经炽热的固定燃烧床生成的。空气中所含的氧气、水蒸气与燃料中的碳反应,生成了共含有CO、CO2、H2、CH4、N2等成分的发生炉煤气。与空气混合的蒸气提高了热效率,并降低了燃烧床的温度,从而控制了熔块的形成。蒸气与碳反应是吸热反应:C+H2O=CO+H2-Q(Q为热量,下同)当氧气和碳反应时就放出热量:2C+O2=2CO+Q燃烧床的温度取决于气化剂的饱和温度,燃料的粒度、类型及发生炉的炉型。燃烧床的温度是非常重要的,因为对于给定的燃料和炉型,它决定着发生炉煤气的成分:在温度高的情况下,可产生大量的可燃气体。因此,重要的是既保持燃烧床高温而又不会形成熔块。形成熔块的温度取决于燃料的渣融特性,在氧气充足的情况下,还会出现两种反应:2CO+O2=2CO2+QC+O2=CO2+Q。所以说,CO的产生并不一定意味着任何碳燃烧都能使煤气的热值降低。另外,一些水蒸气还与CO反应,由于每体积CO转化为CO2时,同时生成了相同体积的H2:CO+H2O=CO2+H2。因此,不会有热损失。在还原层,其温度低于1200℃时,还会出现下面的快速反应:CO2+C=2COH2O+C=CO+H2当煤气通过还原带时,可燃气体含量迅速上升,而CO2和水蒸气含量下降。通过还原带后,一些煤气被抽出,流经底部旋风除尘器和强制风冷器,这股煤气称为“底部煤气”,其温度约为400℃左右。在干馏层,喂入发生炉的燃料,依次被干燥、预热和碳化,生成的蒸气、焦油雾和煤气一块从顶部离开发生炉,这一部分煤气称为“顶部煤气”,其温度保持120℃左右。...
