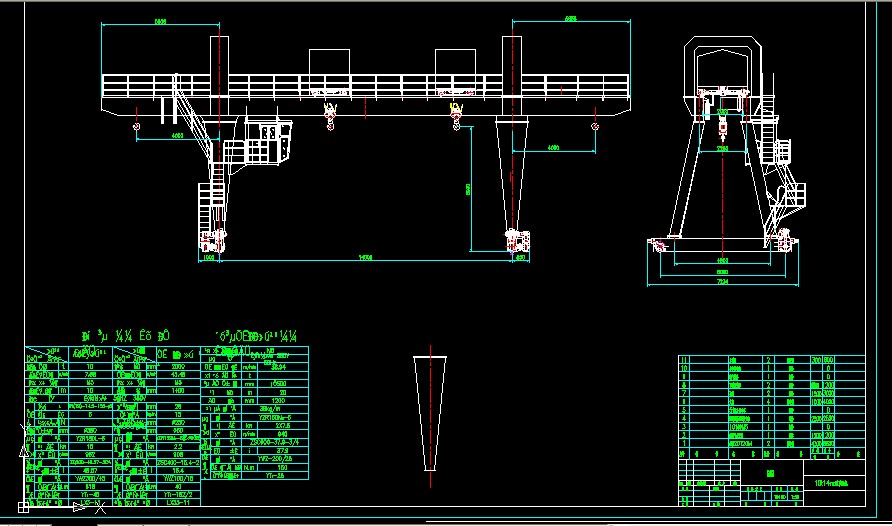
龙门起重机 10t-14m M5
- 文件大小: 1.31 MB
- 下载次数:
- 文件评级:

- 更新时间: 2014-09-08
- 发布人: kongbei
该文件为 dwg 格式(源文件可编辑),下载需要 20 积分
技术要求:
1.本起重机制造.安装.验收必须按国家标准GB/T3811 93 起重机设计规范 JB/T5663.1 91 电动葫芦门式起重机型式和基本参数 和JB/T5663.2 91 电动葫芦门式起重机技术条件 的有关规定.
2.起重机电控设备中各电路的对地绝缘电阻,在一般环境中应不 0.8M?,在潮湿环境中应不小于0.4M?.
3.起重机所有电器设备的外壳应接地,允许用起重机轨道作为接地的导体.
4.起重机安全尺位置由用户根据与相邻起重机之间限位开关的位置而定,并且自行安装.
5.本起重机在非工作状态时,起重机操作工必须将起重机停在固定位置,并将夹轨器夹好及锚定装置放好后方好离开.
6.电缆卷筒从中间供电....
×
