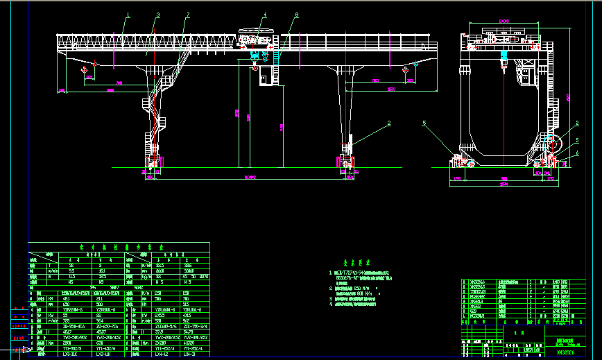
箱型门式起重机cad图纸 32-8t-26m A5
- 文件大小: 178.4 KB
- 下载次数:
- 文件评级:

- 更新时间: 2014-09-16
- 发布人: 2955362171
该文件为 dwg 格式(源文件可编辑),下载需要 20 积分
技术要求
1. 按照GB/T7274.1-94(铁路货场龙门起重机技术条件)及
GB50278-98``起重设备安装工程施工及验收规范''制造,安
装,试验及验收.
2. 起重机工作状态最大风压 250 N/m
起重机非工作状态最大风压 800 N/m
3. 起重机组装完毕后,应调正夹轨器的夹钳,使动作灵活可靠.
4. 大车限位开关的安装高度,可视起重机使用场地的情况而定.
...
×
